Mieszkanie na sprzedaż Pabianice, Centrum

4 pokoje
130.00 m²
4 230,76 zł/m2
3 piętro
HPK-MS-11117
Oblicz ratę kredytu

549 999 zł

Mieszkanie na sprzedaż
Nowa oferta

Szczegóły oferty

Symbol oferty HPK-MS-11117
Powierzchnia 130,00 m²
Liczba pokoi 4
Rodzaj budynku kamienica
Technologia budowlana cegła
Opłaty wg liczników woda, prąd, gaz
Piętro 3
Liczba pięter w budynku 3
Stan lokalu do remontu
Okna częściowo wymienione
Instalacje dobre
Balkon jest
Liczba balkonów 2
Widok panorama miasta
Gaz tak - miejski
Woda piec gazowy dwufunkcyjny
Dojazd asfalt
Otoczenie centrum miasta
Ogrzewanie piec dwufunkcyjny
Usytuowanie trójstronne
Pomieszczenia
Podłogi pokoi parkiet
Typ kuchni oddzielna
Rodzaj kuchni jasna z oknem
Typ łazienki razem z wc
Liczba łazienek 2
Powierzchnia łazienki [m2] 5,7/3,5 m2
Liczba przedpokoi 1
Powierzchnia przedpokoi 8,8 m2
Podłoga przedpokoi parkiet

Opis nieruchomości

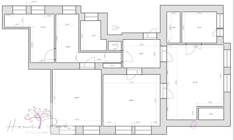
Oferuję wyjątkowe mieszkanie o łącznej powierzchni 130m2, położone na 3-piętrze w solidnej, zadbanej kamienicy w centrum Pabianic.

Idealna propozycja dla osób szukających dużej przestrzeni do życia oraz inwestorów - możliwość podziału na dwa niezależne mieszkania znacząco zwiększa potencjał tej nieruchomości.

Lokal stanowi pełną własność z udziałem w gruncie i posiada jedną księgę wieczystą.

Najważniejsze informacje:

  • funkcjonalny układ - możliwość korzystania jako całość lub jako dwa niezależne mieszkania
  • dwa osobne lokale (ok. 72m2 i 58m2) - każdy z oddzielnym wejściem
  • osobne opomiarowanie mediów (gaz, prąd, woda)
  • dwie kuchnie i dwie łazienki
  • 2 balkony
Standard i wyposażenie:
  • na podłogach elegancki parkiet dębowy
  • ogrzewanie i ciepła woda - z pieca gazowego dwufunkcyjnego
  • częściowo wymienione okna
Budynek:
  • naprawdę zadbana kamienica
  • teren zamknięty - domofon oraz brama na pilota
  • spokojne, uporządkowane otoczenie
Koszty:
  • mieszkanie bezczynszowe
  • fundusz remontowy i eksploatacyjny - 4zł/m2 (miesięcznie)
Lokalizacja:
Nieruchomość znajduję się w bardzo dobrze skomunikowanej części miasta. W pobliżu:
  • przystanki autobusowe i tramwajowe
  • sklepy i punkty usługowe
  • szkoła, przedszkole, żłobek
  • przychodnia
  • tereny rekreacyjne i place zabaw
Zapraszam do kontaktu.

Lokalizacja nieruchomości

Kalkulatory

Kalkulator kredytowy

Wysokość raty

PLN
%

Kalkulator kosztów

Podatek od czynności cywilno-prawnych

Taksa notarialna
(opłata notarialna)

Wniosek o wpis do KW

VAT od prowizji
agencji nieruchomości

VAT od taksy notarialnej
(opłaty notarialnej)

Prowizja agencji nieruchomości

Wypisy aktu notarialnego

Razem

Uwaga: mogą wystąpić dodatkowe opłaty za założenie księgi wieczystej oraz ustanowienie hipoteki.

PLN
PLN
PLN
PLN
PLN
PLN
%
PLN

Podobne oferty

Oferta na wyłączność

Mieszkanie na sprzedaż

Pabianice, Centrum

2 pokoje 54 m2 8 703,69 zł/m2
Oferta na wyłączność

Proszę wprowadzić poprawne imię i nazwisko
Proszę wprowadzić poprawny numer telefonu
Proszę wprowadzić poprawny adres e-mail
Proszę zaznaczyć wymagane zgody
Rozwiąż równanie:
29 6
Niepoprawny wynik