Lokal na sprzedaż Łódź, Bałuty

360.00 m²
3 888,89 zł/m2
1 piętro
HPK-LS-11127
Oblicz ratę kredytu

1 400 000 zł

Lokal na sprzedaż
Nowa oferta

Szczegóły oferty

Symbol oferty HPK-LS-11127
Powierzchnia 360,00 m²
Rodzaj budynku magazyn
Standard
Opłaty w czynszu CO, Części wspólne, sprzątanie, Winda, woda/ryczałt na wodę
Opłaty wg liczników CO, prąd, woda
Piętro 1
Liczba pięter w budynku 3
Stan lokalu dobry
Mies. czynsz admin. 1 000 PLN
Okna PCV
Instalacje wymienione
Rok budowy 1980
Rodzaj lokalu jednopoziomowy
Przeznaczenie lokalu biurowo - magazynowy, biurowy, handlowy, magazynowy, usługowy
Dojazd asfalt
Ogrzewanie miejskie
Winda tak
Usytuowanie jednostronne
Drzwi antywłamaniowe tak
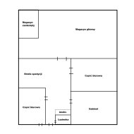
Pomieszczenia
Liczba pomieszczeń biurowych 3
Liczba pomieszczeń magazynowych 2
Powierzchnia pomieszczeń magazynowych [m2] 220 m2
Liczba pomieszczeń sanitarnych 1
Luiza Koneczna

Luiza Koneczna

Doradca ds Nieruchomości
Nr licencji: 8221

Napisz wiadomość 47 Ofert

Opis nieruchomości

Oferuję do sprzedaży lokal biurowo-magazynowy, o powierzchni 360m2 na Bałutach, przy ul. Brukowej.
Obiekt znajduje się na 1p. Posiada dostęp do 2 wind towarowych i rampy. Jedna winda jest tylko do 1p. Okna PCV z wystawą na południe.  

Część biurowa zajmuje 140m2 a magazynowa 220m2.  Wysokość części magazynowej to 4,01m. Na podłodze w części biurowej jest terakota a w części magazynowej beton. Oświetlenie led.
Do oferty dołączony jest rzut o obecnym rozkładzie. Można postawić dodatkowe ścianki działowe lub zdemontować obecne wg uznania.
Może zostać wyposażenie widoczne na zdjęciach.
Wyodrębniony jest aneks kuchenny oraz pomieszczenie sanitarne.
Media: prąd, woda, kanalizacja. Ogrzewanie-miejskie.
Przed budynkiem są miejsca do parkowania i miejsca do rozładunku np. tira

Opłaty miesięczne ok. 1000zł/m-c. 
Obecnie lokal jest wynajęty.
Lokal można przeznaczyć na np. na hurtownię, produkcję, magazyn.

Zapraszam na prezentację!
Opiekun oferty: Luiza Koneczna tel. 535-019-375



 

Lokalizacja nieruchomości

Kalkulatory

Kalkulator kredytowy

Wysokość raty

PLN
%

Kalkulator kosztów

Podatek od czynności cywilno-prawnych

Taksa notarialna
(opłata notarialna)

Wniosek o wpis do KW

VAT od prowizji
agencji nieruchomości

VAT od taksy notarialnej
(opłaty notarialnej)

Prowizja agencji nieruchomości

Wypisy aktu notarialnego

Razem

Uwaga: mogą wystąpić dodatkowe opłaty za założenie księgi wieczystej oraz ustanowienie hipoteki.

PLN
PLN
PLN
PLN
PLN
PLN
%
PLN

Doradca ds Nieruchomości

Proszę wprowadzić poprawne imię i nazwisko
Proszę wprowadzić poprawny numer telefonu
Proszę wprowadzić poprawny adres e-mail
Proszę zaznaczyć wymagane zgody
Rozwiąż równanie:
12 9
Niepoprawny wynik